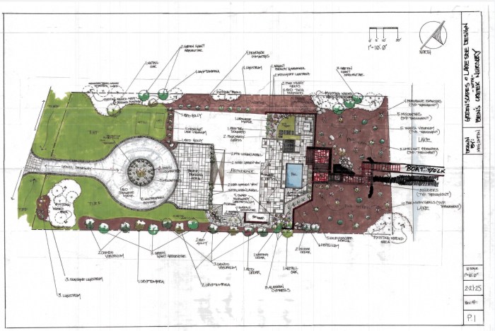
Our guys are making progress. We’ve trucked in, moved, and graded a lot of earth to prepare for this patio/pool installation, and there is still much to be done. But the most important work – the heavy lifting, so to speak – is in place, the load-bearing retaining walls that will hold it all together on a difficult slope.
These are Techo-Bloc segmented retaining walls.






The steep slope to the Lake demanded a creative solution to alleviate the pitch of the terrain, and our guys delivered: a series of steps and landings descending in a zig-zag pattern down to the boat dock.
The landing areas are Techo-Bloc smooth finish paver sidewalks supported by Techo-Bloc segmented block wingwalls, and the steps are 6′ dark grey stone slabs.







The pool has yet to be installed and there is still plenty of work to do …




… but kudos to our crews on a great start! We will post finished photos when available.

Hunter site.
See something you like? Contact us!

2 thoughts on “In Progress – Patio/Pool Complex”